
都市水鄉 | 聚集人間煙火氣,啟開生活小確幸

項目信息
項目地址:都市水鄉
項目戶型:復式
項目面積:130㎡
設計風格:現代輕奢
設計施工:浙江南鴻裝飾
主要用材:圣象地板,羅馬利奧瓷磚,恒潔、漢斯格雅潔具,LAZBOY軟裝等
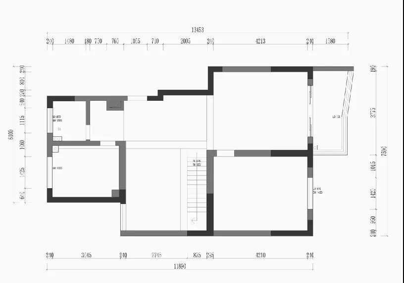
本案是一套現代輕奢風格的復式作品,業主夫妻二人,暫無小孩子,房間上除主臥之外,保留了兩個次臥做父母房和兒童房,一樓寬敞通透的開放式公區域設計成為本案一大亮點。 一層集合了日常所有的的煙火氣,蒸箱、烤箱、咖啡機、洗碗機、洗衣機...攜帶著一種隨性的自由,廚房到客廳依次構成白與黑、疏與密、放與收的過渡對比,層次感的疊加形成舒適的視覺體驗。 空間以暖調的木飾面色搭配黑白灰作為整體基調,簡約利落又不失家的溫馨。 戶型分析 ▼ 原始戶型存在一樓空間相對擁擠,樓梯陡峭,走起來費力,二樓空間利用率不高等問題。 1、樓梯位置調整,打造多個收納展示空間。 2、原有結構陽臺納入室內,擴大客廳使用面積和直接采光面。 3、廚房門洞改變方向,消除了原廚房與客餐廳的隔閡,打造一體化、全開放的格 局。 入戶區迎面而來一層開放大格局,往左為客廳,視野通透舒暢。定制儲物柜滿足基本的收納需求,色彩由淺入深,層次清晰分明,滿足功能的同時不失視覺美感。 青草綠點綴出小清新,柜內設計隱藏式燈帶,見光不見燈的效果,簡單一筆勾勒出空間輪廓與光影質感。 客 廳 LIVING ROOM 美觀大方的客廳空間,左右兩側維系著剛剛好的距離,溫和的底色在視覺上減輕了壓迫感。大理石與木飾面結合的電視背景,搭配硬包,皮藝沙發和單椅,顯出輕奢意味。 黑白灰三色搭配的餐廳空間,點綴的金屬材質點亮活力。開敞明亮的用餐環境,兩側都留有足夠大的通道距離,應對日常的社交聚餐可以說毫無壓力。 空間的時尚高級感,除了整體硬裝、家具的造型選擇之外,更重要在于細節的雕琢。由樓梯下來的白凈墻面,除了懸掛常規的裝飾畫外,由黑色線條勾勒的人像圖形也頗有趣味,讓人能感受到一種自在而愉悅的氛圍。 灰色向來是現代感家居的寵兒,沉靜色彩更能凸顯質感。 廚 房 KITCHEN 廚房與餐廳以玻璃門相隔,保持視覺的通暢,U型設計極大地提高空間利用率,洗菜、切菜、烹炒動線流暢,高效下廚輕輕松松。 主臥包入陽臺打造為休閑區,床頭背景清新的淺藍色與床品的灰色、單椅的橙色形成了具有層次感的溫馨格調。 床尾打造女主人的梳妝臺,豎線條裝飾營造縱橫維度的立體感,與留白的墻面相映襯,豐富了主臥空間的現代意象。 休閑陽臺除了一把單椅外,還有造型輕巧的穿衣鏡與掛衣架,生活的小確幸就在一點一滴的細節間把握。 長輩房藏在客廳隱形門背后,不增添過多修飾的空間更加簡約耐看,偶爾來小住的父母也有了私密的休憩之地。 長虹玻璃門引入外部光線,保證衛浴室的明凈感受。壁掛馬桶不留衛生死角,方便日常清潔。黑色的五金件隱隱占據視覺主導,將利落的現代感盡可能放大。




















免費
免費申請戶型規劃
專屬設計師免費1對1全程服務
已經有3777人申請
24小時免費咨詢電話
400-8800-618
你家預算
108080元