
秦憶榮府 | 家要的是什么?輕盈自在的呼吸!

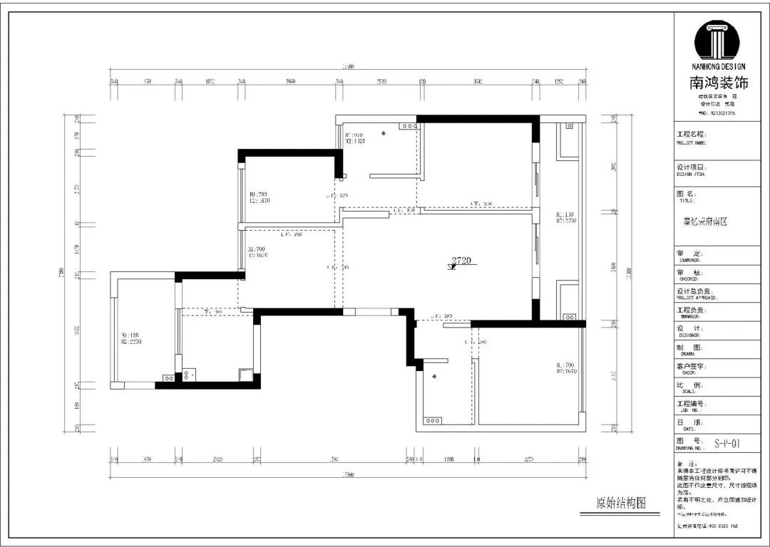
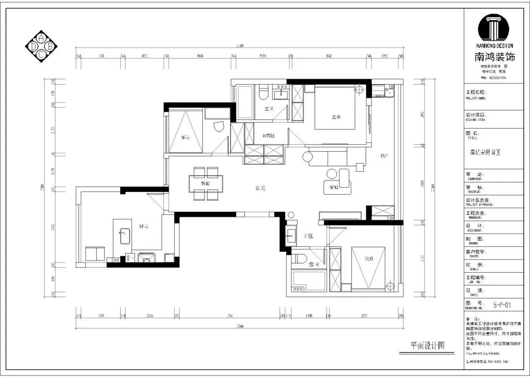
項目信息 / 地址:秦憶榮府 城市:中國 杭州 戶型:三室兩廳 面積:120㎡ 風格:現代輕奢 設計施工:浙江南鴻裝飾 本案是一個三口之家,女主人希望自己的生活有更多的儀式感,并且愛好下廚,所以相比家里的其他區域,他們對廚房的要求是最高的。 簡潔的設計語言讓整體空間呈現清爽自在的狀態,僅依靠光線在其中的漫步游走,便折射出了有層次的質感。 空間的氛圍營造不需要多么華貴的色彩 一盞燈,一盆植株,一張沙發,一束陽光 便能讓人感知到場景中的愉悅和自在 在不經意間 就將生活的哲學一一顯現 【戶型改造分析】 ▲原始戶型圖 優點:戶型比較方正,南北通透,各個空間的布局規劃完整,雙陽臺的大開間顯的空間感更通透。 缺點:廚房原始空間不夠用,客衛和主臥的儲物空間都不能滿足屋主的居住需求。 ▲平面設計圖 設計改動:將北面的設備陽臺擴進廚房,大開間廚房加上U型操作臺設計,增強了餐廚區的功能性;客衛做了干濕分離;主臥增加衣帽間,滿足屋主的儲物需求。 ENTRANCE 玄關>> 白色的通頂柜穿插木作結構,組合吊燈與掛畫,打造清爽無壓的入戶視覺體驗。 LIVING ROOM 客廳>> 客廳空間感通透,良好的采光讓室內涂上了一層輕盈舒緩的朦朧色調,是自然與空間在進行著親切的對話。 簡單的邊吊不壓抑層高,柔和木色增添家的溫馨和舒適,橙色的單品也讓空間看起來更顯活力。圓形的茶幾與頂面吊燈做一個小小的呼應,電視背景則選用巖板,提升輕奢感和時尚度。 軟裝通過一些跳躍的色彩讓空間變得積極有趣,背景墻留白作為一種平衡和高級感的呈現。通往主臥的房門則是做了隱形門處理,強化視覺的整體性。 DINING ROOM 餐廳>> 在中式文化中,一日三餐即是煙火人間,最簡單的餐食中也藏著質樸動人的親情。一張圓桌代表中國人最熟悉的團圓之意。 KITCHEN 廚房>> 廚房擴進設備陽臺后擁有了更充足的操作空間,灰色瓷磚與木白色調的櫥柜組合,展現清爽而利落的面貌。U型操作臺制造最佳洗-切-煮的動線,輕松達到高效下廚的效果。 BEDROOM 臥室>> 臥室因使用者的不同而挑選了不同的主色,家居的個性化也因此有了具體的詮釋。簡約的調性就像他們對生活平凡而真摯的訴求,同時包容著時代前進的美。 BATHROOM 衛生間>> 衛浴做干濕分離提升日常使用效率,絳紅跳色與長虹玻璃柜面的選用讓空間多了有趣的變化和更多的層次。














上一篇:神仙材質微水泥,高級感藏不住了!
下一篇:海尚國際 | 清風朗月,歲歲溫柔
免費
免費申請戶型規劃
專屬設計師免費1對1全程服務
已經有3777人申請
24小時免費咨詢電話
400-8800-618
你家預算
108080元